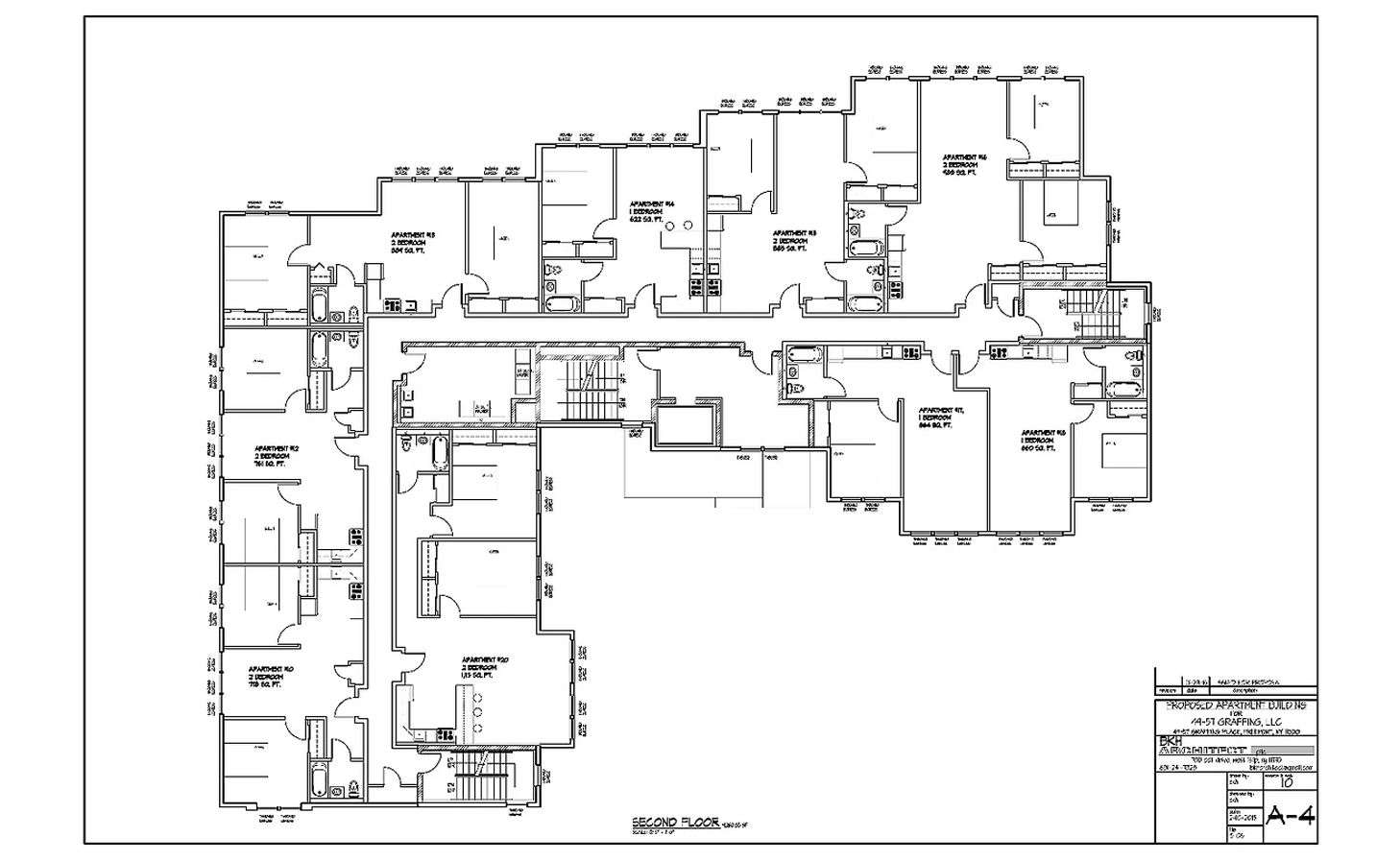
View Larger Image Freeport, NY – New 33 Unit, 34,400 Square Foot Apartment Buildingbkh2019-07-02T12:13:04-04:00 Project Description Freeport, NY – New 33 unit, 34,400 Square Foot Apartment Building Share This! Choose Your Platform! FacebookTwitterLinkedInGoogle+Pinterest Related Projects Brooklyn Army Terminal Annex Building Brooklyn Army Terminal Annex Building November 24th, 2019 Proposed 35 unit Residential building – Valley Stream, NY Proposed 35 unit Residential building – Valley Stream, NY July 2nd, 2019 | 0 Comments Freeport, NY – New 20 Unit, 8,200 Square Foot Apartment Buildings Freeport, NY – New 20 Unit, 8,200 Square Foot Apartment Buildings July 1st, 2019